Innovative Healthcare Solutions
Comprehensive expertise in modern healthcare facility design, engineering, and medical planning.


Architectural Design
Comprehensive architectural design and delivery tailored for healthcare facilities.




Mechanical and Electrical Design
Design and implementation of ventilation, medical gas, fire protection, clean and wastewater systems, elevators, and electrical infrastructure — all in compliance with international standards.




Medical Master Plan and Design
Medical equipment planning, infrastructure design, and hospital quality standards in compliance with HTM, GOST, and other international regulations.


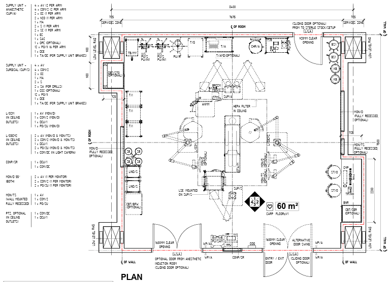
Selected Visuals From Completed Projects.
Visuals from projects we have completed










